Chartered Surveyors and Business Property Specialists
Industrial Unit to let / Leasehold

From £22,500 per annum

Connect with Agent Download Brochure PDF
Available
1/9
Fullscreen

4 Sisna Park, 47 Sisna Park Road, Estover, Plymouth, Devon

Connect with Agent Download Brochure PDF

Overview

  • WAREHOUSE/FACTORY/TRADE COUNTER WITH MEZZANINE
  • 3,065 sq.ft ( 285 sq.m )
  • PARKING AND LOADING AREA
  • POPULAR INDUSTRIAL / TRADE LOCATION
  • MODERN UNIT WITH 7M HIGH EAVES
  • AVAILABLE AUTUMN 2025
  • EPC N/A

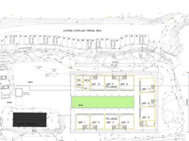
Sisna Park is a highly popular business park, approximately 2 miles north of the A38 (M5) dual carriageway, accessed mainly via 40mph dual carriageway roads. It comprises several terraces of industrial warehouse units built approximately 15 years ago.
The property comprises mid-terraced industrial unit with mezzanine, providing first floor office and storage, currently used as a staff meeting/breakout area. The min. height to underside of haunch is 5.5m (6.3m eaves). Access is via a personnel door and a sectional goods loading door (4m wide x 5m). Externally, up to 5 cars can be parked in front of the unit in addition to delivery apron. NOTE: All motor use is prohibited.

Interested in this Property?
Connect with our Expert

Leigh Robinson Commercial Agency Surveyor - Listers Property Consultants View Profile

Call: 07386 667 528
Email: lar@listers.uk.com

Other Industrial Unit Properties you might be interested in

Available Leasehold
1/7
Industrial Unit to let
POA
Sold Freehold
1/8
Let Leasehold
1/2
Let Leasehold
1/13
Let Leasehold
1/5
Industrial Unit to let
£5,750 Per Annum Excl
Available Leasehold
1/16
Let Leasehold
1/14
Let Leasehold
1/10
Let Leasehold
1/16
Industrial Unit to let
£7,500 Per Annum Excl