Chartered Surveyors and Business Property Specialists
Development opportunity for sale / Freehold

£1,400,000

Connect with Agent Download Brochure PDF
Available
1/14
Fullscreen

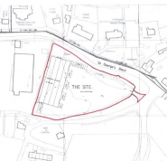
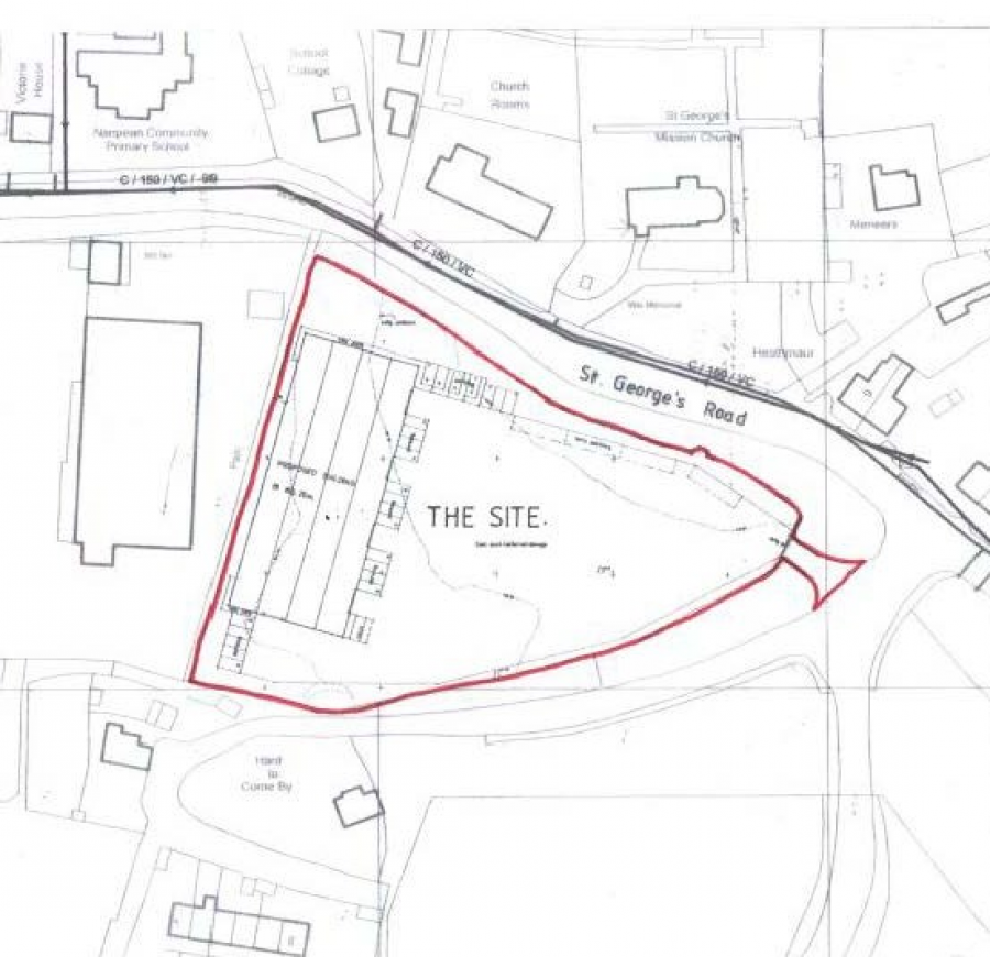
Development Land, St Georges Road, Nanpean

Connect with Agent Download Brochure PDF

Overview

  • FREEHOLD DEVELOPMENT LAND
  • 1.9 ACRES (0.77 HECTARES)
  • LOCATED IN CENTRAL CORNWALL
  • SUBSTANTIAL LEVEL, GATED PLOT
  • PREVIOUS CONSENT FOR BUILDINGS

The property comprises a generally level plot within a gated compound and accessed across a bridge. The plot is well screened from the village with an established tree border.

Planning has previously been granted as follows:

PA16/10205 | Proposed erection of a Storage and Distribution building (Class B8) and associated works.
Consent was granted for a unit of 16,146 sq ft 1,500 sq m with clear span beams, external yard space/parking and the ability to sub divide to provide up to 5 smaller units.

PA20/11420 | Proposed new office building. | St Georges Manor Nanpean St Austell Cornwall PL26 7YN.
Consent was granted for a three-storey office building providing a gross floor area of 4,152 sq ft (385.8 sq m) with external parking

Location:The property is located in the village of Nanpean in an easy to access location. The market town of St Austell is approximately 3 miles distant. The A30 which is Cornwall’s arterial route can be easily accessed from the Victoria junction which is approximately 6 miles to the east and the Indian Queens junction approximately 4 miles to the west.

Interested in this Property?
Connect with our Expert

Thomas Hewitt Consultant View Profile

Call: 01872 247025
Email: th@miller-commercial.co.uk

Other Development opportunity Properties you might be interested in

Available Freehold
1/21
Sold Freehold
1/5
Development opportunity for sale
£50,000 By auction
Sold Freehold
1/5
Development opportunity for sale
£85,000 Asking price
Sold Freehold
1/13
Development opportunity for sale
£85,000 Guide Price
Sold Freehold
1/10
Development opportunity for sale
£90,000 Guide Price
Sold Freehold
1/11
Development opportunity for sale
£120,000 By auction
Available Long leasehold
1/19
Development opportunity for sale
£125,000 Offers in excess of
Sold Freehold
1/14
Development opportunity for sale
£165,000 Offers in excess of