Chartered Surveyors and Business Property Specialists
Office to let / Leasehold

£12,000

Connect with Agent Download Brochure PDF
Let
1/13
Fullscreen

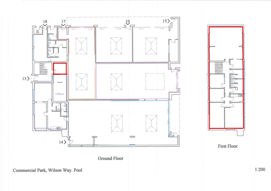
First Floor Offices, Unit 13 Commercial Park, Wilson Way, Redruth, Cornwall

Connect with Agent Download Brochure PDF

Overview

  • FIRST FLOOR OFFICE
  • 1,447 SQ FT (134.4 SQ M)
  • ESTABLISHED BUSINESS LOCATION
  • WAREHOUSING AVAILABLE ON THE SAME SITE
  • GENEROUS ALLOCATED PARKING
  • ENERGY PEFORMANCE CERTIFICATE – D(86)

The property comprises a two storey concrete framed office block which has a prominent position on Wilson Way next door to Baker Tom’s cafe. The subject offices being first floor have great opportunity for prominent signage making it an attractive proposition for occupation. Furthermore, it has a generous car parking ratio comparative with its modern counterparts. Presently it is laid out with individual offices, tea point and ladies and gents toilets.

Commercial Park is a business complex situated fronting the busy Wilson Way which forms part of the Camborne Pool and Redruth Distributor Road.

Interested in this Property?
Connect with our Expert

Mike Nightingale Partner View Profile

Call: 01872 247008
Email: msn@miller-commercial.co.uk

Other Office Properties you might be interested in

Available Leasehold
1/8
Office to let
£3,950 Per Annum Excl
Let Leasehold
1/8
Office to let
£3,950 Per Annum Excl
Available Leasehold
1/17
Let Leasehold
1/9
Office to let
£4,750 Per Annum Excl
Available Leasehold
1/12
Available Leasehold
1/16
Office to let
£4,980 (from) Per annum
Let Leasehold
1/10
Office to let
£5,000 Per Annum Excl
Let Leasehold
1/11
Office to let
£5,000 (from) Per annum
Let Leasehold
1/13
Office to let
£6,000 Offers Over