Chartered Surveyors and Business Property Specialists
Retail to let / Leasehold
Connect with Agent Download Brochure PDF
Let
1/6
Fullscreen

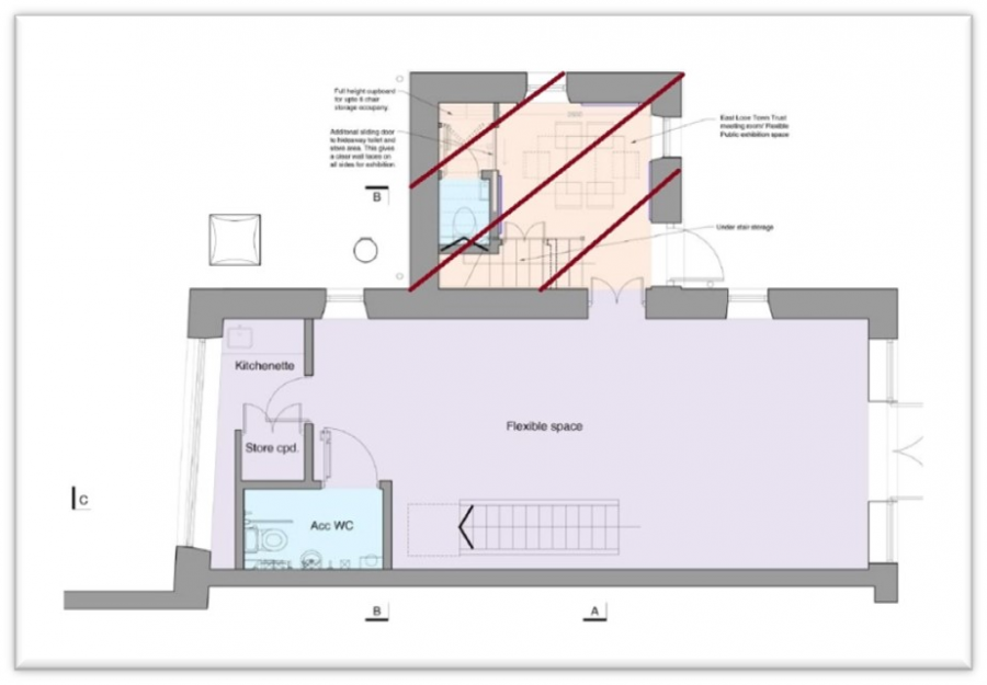
The Old Lifeboat Station, East Looe, Looe, Cornwall

Connect with Agent Download Brochure PDF

Overview

  • PRIME SEAFRONT LOCATION
  • REFURBISHED PREMISES SUITABLE FOR A RANGE OF PURPOSES
  • EXTERNAL SPACE, FRONT AND REAR, AVAILABLE ON NEGOTIATION
  • 525 SQ FT (48.8 SQ M) GIA – 403 SQ FT (37.5 SQ M) ITZA
  • LANDMARK GRADE II LISTED FORMER LIFEBOAT STATION
  • EPC TBC UPON COMPLETION OF REFURBISHMENT
  • NEW LEASE AVAILABLE MARCH 2025, TO LET BY TENDER – CLOSING DATE MONDAY 1 JULY 2024

The Grant-winning major renovation project means that the whole building is being refurbished internally and externally by heritage specialists. The iconic building is a focal point on the seafront, ideal for a range of businesses. This will provide a modern, vibrant, sustainable workplace, with option of external space by negotiation.

The attached watchtower is also part of the renovation which will greatly improve the immediate area, with the potential of solar powered energy.
Full details are available on request.

The property is situated in the popular fishing port and holiday destination of Looe, on the East side of the harbour. Looe is located on the south coast of Cornwall, approximately 10 miles from Liskeard, and 20 miles west of Plymouth. The town is a popular tourist location and includes a picturesque harbour which has provides a range of local and national retailers, hotel, restaurants and public houses etc. Looe benefits from a large, long stay car park and branch line railway connection.

Interested in this Property?
Connect with our Expert

Thomas Hewitt Consultant View Profile

Call: 01872 247025
Email: th@miller-commercial.co.uk

Other Retail Properties you might be interested in

Sold Freehold
1/12
Let Leasehold
1/9
Retail to let
£4,800 Per Annum Excl
Let Leasehold
1/12
Retail to let
£5,400 Per Annum Excl
Available Leasehold
1/12
Retail to let
£5,400 Per Annum Excl
Let Leasehold
1/8
Retail to let
£6,000 Per Annum Excl
Let Leasehold
1/10
Retail to let
£6,500 Per Annum Excl
Let Leasehold
1/13
Retail to let
£7,000 Per Annum Excl
Let Leasehold
1/5
Retail to let
£7,000 Guide Price
Let Leasehold
1/7
Retail to let
£7,000 Guide Price