Chartered Surveyors and Business Property Specialists
Industrial Unit to let / Leasehold

£18,500

Connect with Agent Download Brochure PDF
Available
1/9
Fullscreen

Unit 8, Stable Hobba Industrial Estate, Newlyn, Penzance, Cornwall

Connect with Agent Download Brochure PDF

Overview

  • TO LET
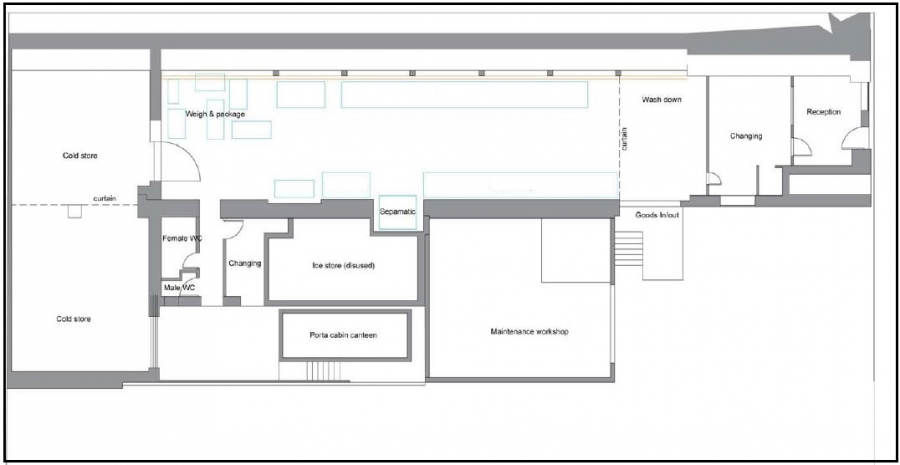
  • INDUSTRIAL UNIT – FITTED OUT FOR FOOD/FISH PRODUCTION & PROCESSING
  • 3,730 SQ FT (347 SQ M)
  • AREA INCLUDES PREPARATION SPACE, LOADING BAY, STORAGE, OFFICE AND STAFF AREA
  • 3 PHASE POWER AND SOLAR PANEL ELECTRICITY GENERATION
  • ALSO AVAILABLE FOR SALE – PRICE ON APPLICATION
  • EPC RATING D (88)

The unit comprises a specialist food production/processing facility, which has until recently been used for shellfish processing. The property has been fitted out to a high standard for the processing of food and can be easily adapted to other uses. The premises benefits from air conditioning and 3-phase power as well as electricity generation from PV cells on the roof.

The property is located in the heart of Stable Hobba, a well-known industrial estate on the fringe of Newlyn. Quick and easy access to the A30 is provided and Penzance is a 5 minute drive away.

Interested in this Property?
Connect with our Expert

Thomas Smith Partner View Profile

Call: 01872 247013
Email: ts@miller-commercial.co.uk

Other Industrial Unit Properties you might be interested in

Sold Freehold
1/8
Let Leasehold
1/2
Let Leasehold
1/13
Let Leasehold
1/5
Industrial Unit to let
£5,750 Per Annum Excl
Available Leasehold
1/12
Industrial Unit to let
£6,000 Per Annum Excl
Available Leasehold
1/16
Let Leasehold
1/14
Let Leasehold
1/10
Let Leasehold
1/16
Industrial Unit to let
£7,500 Per Annum Excl