Chartered Surveyors and Business Property Specialists
Retail to let / Leasehold

£13,000

Connect with Agent Download Brochure PDF
Let
1/10
Fullscreen

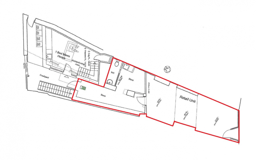
15 Molesworth Street, Wadebridge, Cornwall

Connect with Agent Download Brochure PDF

Overview

  • TO LET
  • 550 SQ FT RETAIL UNIT WITH STORAGE / WC & TEA POINT
  • PROMINENT POSITION IN THE CENTRE OF DESIREABLE WADEBRIDGE
  • TRADITIONAL RETAIL FACADE
  • EPC RATING OF C (61)

Prime Wadebridge town center retail unit To Let!

The town is well known as a proudly independent center with an interesting and diverse retail offering with a mixture of local traders, curiosity shops, coffee shops and pubs as well as essential high street national names. Wadebridge is also known as the gateway to the very popular holiday destinations of Padstow, Harlyn, Rock and Polzeath and is synonymous with the famous cycling route, the Camel Trail.

The ground floor comprises a very well refurbished retail unit behind a traditional shop facade that benefits from a tea point and WC as well as storage area to the rear.

Interested in this Property?
Connect with our Expert

Thomas Smith Partner View Profile

Call: 01872 247013
Email: ts@miller-commercial.co.uk

Other Retail Properties you might be interested in

Sold Freehold
1/12
Sold Leasehold
1/14
Let Leasehold
1/9
Retail to let
£4,800 Per Annum Excl
Under offer Leasehold
1/10
Retail to let
£5,400 Per Annum Excl
Let Leasehold
1/12
Retail to let
£5,400 Per Annum Excl
Let Leasehold
1/8
Retail to let
£6,000 Per Annum Excl
Let Leasehold
1/10
Retail to let
£6,500 Per Annum Excl
Let Leasehold
1/5
Retail to let
£7,000 Guide Price