Chartered Surveyors and Business Property Specialists
Retail to let / Leasehold

£32,500

Connect with Agent Download Brochure PDF
Under Offer
1/12
Fullscreen

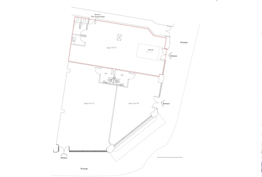
3c The Creation Centre, Green Street, Truro, Cornwall

Connect with Agent Download Brochure PDF

Overview

  • VERSATILE RETAIL PREMISES
  • 1,027 SQ FT (95.4 SQ M)
  • ESTABLISHED TRADING LOCATION
  • EPC B (32)

The property benefits from a generous window frontage.
The property is currently occupied by Subway but will be returned to a condition ready to receive an incoming tenants fit out.

Located in a busy position on the edge of Lemon Quay where events and markets are regularly held. Nearby occupiers include Marks and Spencer, Primark, Spar, Rowe’s Bakers, The Cornish Oven, Pannier Market etc. The City centre is within a 5-minute walk. The park and ride stop is within a 2-minute walk and the main bus terminus is located opposite.

Interested in this Property?
Connect with our Expert

Mike Nightingale Partner View Profile

Call: 01872 247008
Email: msn@miller-commercial.co.uk

Other Retail Properties you might be interested in

Sold Freehold
1/12
Let Leasehold
1/9
Retail to let
£4,800 Per Annum Excl
Let Leasehold
1/12
Retail to let
£5,400 Per Annum Excl
Available Leasehold
1/12
Retail to let
£5,400 Per Annum Excl
Let Leasehold
1/8
Retail to let
£6,000 Per Annum Excl
Let Leasehold
1/10
Retail to let
£6,500 Per Annum Excl
Let Leasehold
1/13
Retail to let
£7,000 Per Annum Excl
Let Leasehold
1/5
Retail to let
£7,000 Guide Price