Chartered Surveyors and Business Property Specialists
Development opportunity for sale / Freehold

£895,000 Guide Price

Connect with Agent Download Brochure PDF
Available
1/22
Fullscreen

Azime Court, Rock Road, Rock, Wadebridge, Cornwall

Connect with Agent Download Brochure PDF

Overview

  • MIXED INVESTMENT FOR SALE
  • ‘GEM’ LOCATION OF ROCK, NORTH CORNWALL
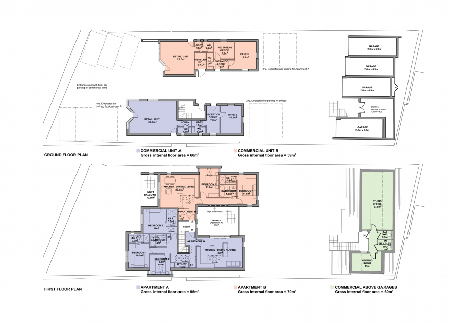
  • MULTI-LET TO RETAIL AND OFFICE USERS
  • VACANT TWO BED FLAT
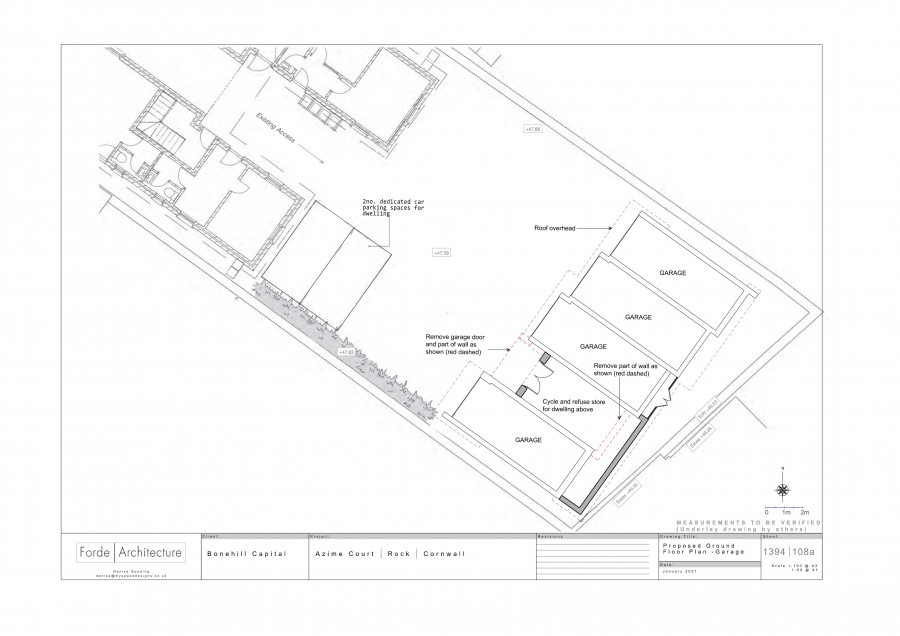
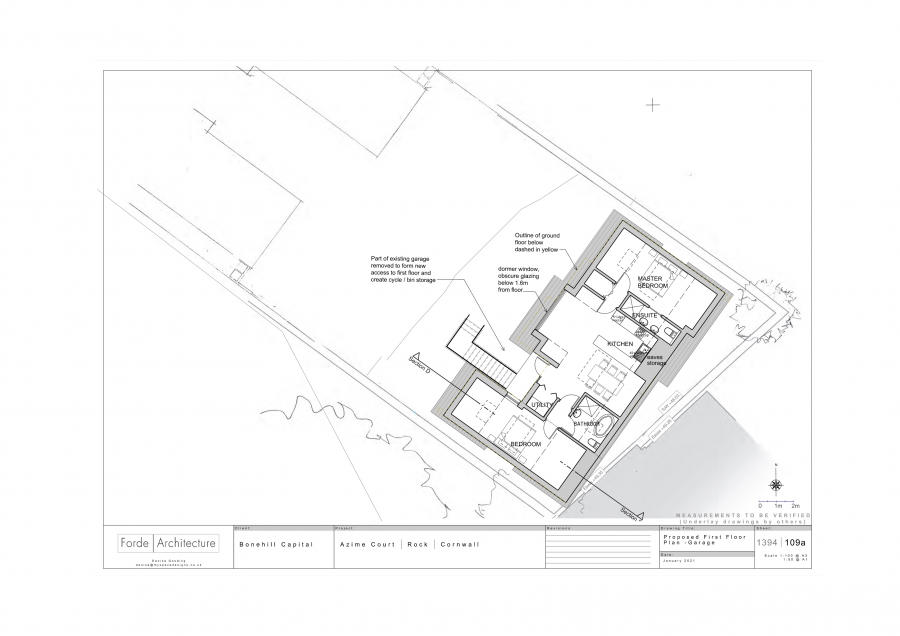
  • PLANNING GRANTED FOR FURTHER RESI DEVELOPMENT
  • ENERGY PERFORMANCE ASSET RATINGS BETWEEN E – B

Azime Court is a ready made investment opportunity with the potential for further residential development to the rear. A rarity on the market it has an income in the region of £40,000 with planning already granted to the rear, alongside a vacant 2-bed flat which could either be a Cornish bolthole or further income. Available immediately at a guide of £895,000, this is not an opportunity to be missed in one of the most sought-after destinations in Cornwall.

Located in Rock, the property is situated in one of the most sought-after destinations along the North Cornish coast renowned for its outdoor leisure activities including sailing, canoeing, water skiing, gig rowing, windsurfing, golf and scenic coastal walks. The area boasts an abundance of fine beaches in particular Daymer Bay and Polzeath. Rock Road itself is the main road down to the water with The Mariner’s Arms and other retail and hospitality offerings.

Interested in this Property?
Connect with our Expert

Jonny Bright Senior Surveyor View Profile

Call: 01872 247022
Email: jb@miller-commercial.co.uk

Other Development opportunity Properties you might be interested in

Sold Freehold
1/5
Development opportunity for sale
£85,000 Asking price
Sold Freehold
1/13
Development opportunity for sale
£85,000 Guide Price
Sold Freehold
1/10
Development opportunity for sale
£90,000 Guide Price
Available Long leasehold
1/19
Development opportunity for sale
£125,000 Offers in excess of
Sold Freehold
1/14
Development opportunity for sale
£165,000 Offers in excess of
Sold Freehold
1/19
Development opportunity for sale
£180,000 Offers Over
Sold Freehold
1/6
Development opportunity for sale
£180,000
Sold Freehold
1/8
Development opportunity for sale
£185,000 Offers Over