Chartered Surveyors and Business Property Specialists
Development opportunity for sale / Freehold

£795,000 Asking price

Connect with Agent Download Brochure PDF
Available
1/13
Fullscreen

Conversion Opportunity, 29-30 Market Street, Falmouth, Cornwall

Connect with Agent Download Brochure PDF

Overview

  • CONVERSION/EXTENSION OPPORTUNITY
  • PROMINENT TOWN CENTRE LOCATION
  • PLANNING CONSENT FOR 7 FLATS, SHOP & BASEMENT STORAGE
  • DIRECT HARBOUR VIEWS FROM THE REAR
  • AVAILABLE IMMEDIATELY
  • ENERGY PERFORMANCE CERTIFICATE – APPLIED FOR

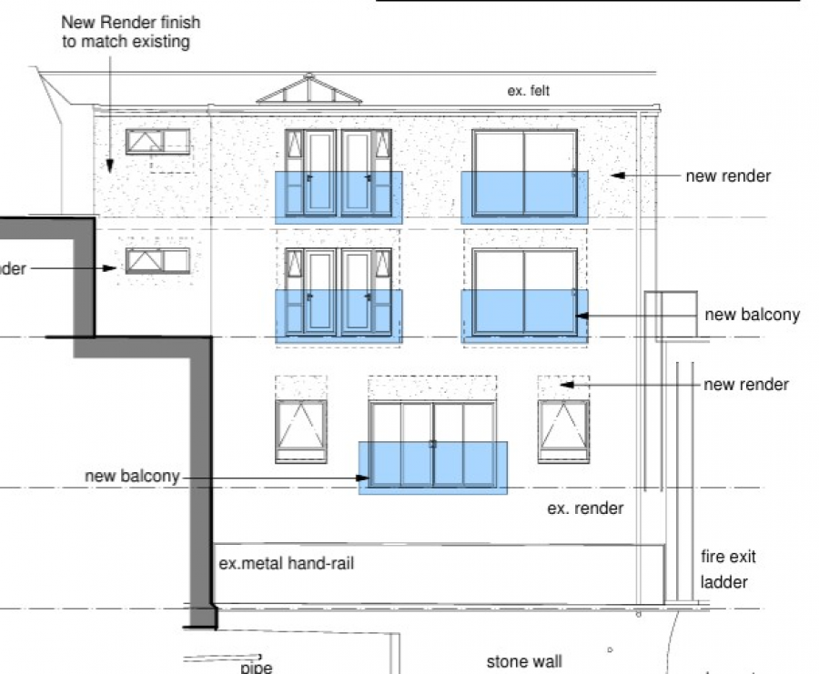
The building is mid terraced three storey building with large basement under a pitch tile roof, with the rear section two storey with two elements of flat roof. The shopfront is cuurently slightly set back from the pavement and consists of a mix of glazing and hard frontage. To the rear, the property has direct views overlooking the busy harbour towards Trefusis Point.

The property benefits from planning consent under PA24-06377 for a replacement shop front with independent access to the upper floors and basement, The building has consent for an extension at second floor level and the creation of 7 flats togetjher with the retention of a smaller retail unit at ground floor level.

The property is located at the southern end of Market Street close to the junction of Church Street and Fish Strand Quay within the town centre. There are a number of national occupiers in close proximity including WH Smith, Superdrug, Boots, Joules and SeaSalt, as well as a number of independent traders, bars, pubs and restaurants. There are also large car parks situated at either end of the town both within walking distance.

Interested in this Property?
Connect with our Expert

Mike Nightingale Partner View Profile

Call: 01872 247008
Email: msn@miller-commercial.co.uk

Other Development opportunity Properties you might be interested in

Sold Freehold
1/13
Development opportunity for sale
£85,000 Guide Price
Sold Freehold
1/5
Development opportunity for sale
£85,000 Asking price
Sold Freehold
1/10
Development opportunity for sale
£90,000 Guide Price
Available Long leasehold
1/19
Development opportunity for sale
£125,000 Offers in excess of
Sold Freehold
1/14
Development opportunity for sale
£165,000 Offers in excess of
Sold Freehold
1/6
Development opportunity for sale
£180,000
Sold Freehold
1/19
Development opportunity for sale
£180,000 Offers Over
Sold Freehold
1/8
Development opportunity for sale
£185,000 Offers Over