Chartered Surveyors and Business Property Specialists
Investments Commercial for sale / Freehold

£175,000 Asking price

Connect with Agent Download Brochure PDF
Available
1/17
Fullscreen

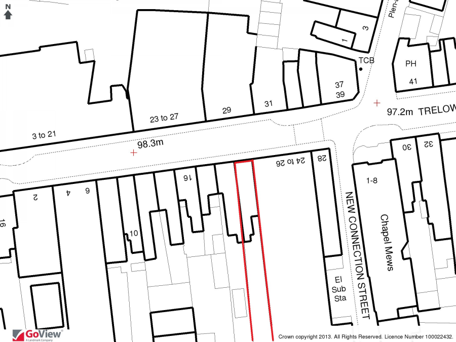
Mixed Investment Opportunity, 22 Trelowarren Street, Camborne, Cornwall

Connect with Agent Download Brochure PDF

Overview

  • VACANT GROUND FLOOR LOCK UP RETAIL PREMISES
  • INDEPENDENTLY ACCESSED 1 BED. FLAT
  • PROMINENT LOCATION NEXT TO POUNDSTRETCHER
  • LARGE PLOT WITH REAR ACCESS FROM VYVYAN STREET
  • SCOPE FOR DEVELOPMENT AT REAR (SUBJECT TO CONSENTS)
  • ENERGY PERFORMANCE ASSET RATING SHOP (E)112 ; FLAT F(25) – EXEMPTION REGISTERED

The ground floor is vacant and the first floor one bedroomed flat is occupied under an assured shorthold tenancy.
The building is situated on a large plot with rear access from Vyvian Street where there is a parking space and dilapidated garage. There may be potential (subject to consents) to erect a building at the rear.

A ground floor lock up retail unit located in an excellent trading location adjoining Poundstretcher in the centre of Camborne close to Rosewarne Car Park and the bus interchange. Other nearby occupiers include Warrens, Philps Pasty Shop, Costa Coffee, Halifax, Carphone Warehouse, Barnardos, Santander and Specsavers.

Interested in this Property?
Connect with our Expert

Mike Nightingale Partner View Profile

Call: 01872 247008
Email: msn@miller-commercial.co.uk

Other Investments Commercial Properties you might be interested in

Let Leasehold
1/5
Investments Commercial to let
£9,000 Per Annum Excl
Let Leasehold
1/11
Investments Commercial to let
£26,000 Per Annum Excl
Sold Leasehold
1/16
Investments Commercial for sale
£50,000 Guide Price
Sold Freehold
1/8
Investments Commercial for sale
£69,950 Asking price
Available Freehold
1/8
Investments Commercial for sale
£70,000 Guide Price
Sold Long leasehold
1/7
Investments Commercial for sale
£105,000 Guide Price
Available Freehold
1/19
Investments Commercial for sale
£125,000 Asking price
Available Freehold
1/13
Investments Commercial for sale
£125,000 Guide Price
Sold Freehold
1/11
Investments Commercial for sale
£140,000 Guide Price