Chartered Surveyors and Business Property Specialists
Investments Commercial for sale / Freehold

£325,000 Asking price

Connect with Agent Download Brochure PDF
Sale agreed
1/15
Fullscreen

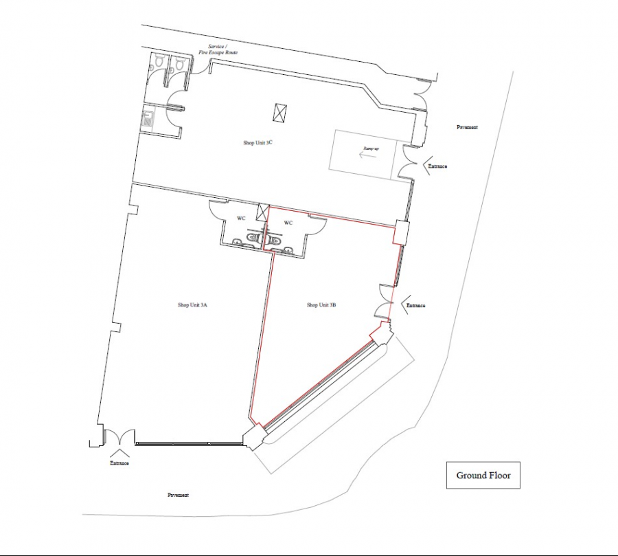
Retail Investment, 3b The Creation Centre, Back Quay/Green Street, Truro, Cornwall

Connect with Agent Download Brochure PDF

Overview

  • RETAIL INVESTMENT – BUSINESS NOT AFFECTED
  • 457 SQ FT (46.6 SQ M)
  • PRIME POSITION FRONTING LEMON QUAY
  • PRODUCING £32,000 PER ANNUM – LEASE EXPIRY JULY 2033
  • CLOSE TO BUS STATION, MARKS AND SPENCER, PRIMARK & CAR PARKS
  • ENERGY PERFORMANCE CERTIFICATE – C (66)

A ground floor lock-up retail unit located in a very prominent position overlooking Lemon Quay in the centre of Truro. The premises are close to the bus station and face the subway serving Garras Wharf and Tesco Car Parks. The business operates as a Spar shop and is well fitted out.

The premises are located close to the bus station and the underpass which serves Garras Wharf and Tesco Car Parks. Nearby occupiers include Marks and Spencer, Primark, Subway, WC Rowe, Cotswold Outddor, O2 and the Hall For Cornwall.

Interested in this Property?
Connect with our Expert

Mike Nightingale Partner View Profile

Call: 01872 247008
Email: msn@miller-commercial.co.uk

Other Investments Commercial Properties you might be interested in

Let Leasehold
1/5
Investments Commercial to let
£9,000 Per Annum Excl
Let Leasehold
1/11
Investments Commercial to let
£26,000 Per Annum Excl
Sold Leasehold
1/16
Investments Commercial for sale
£50,000 Guide Price
Sold Freehold
1/8
Investments Commercial for sale
£69,950 Asking price
Available Freehold
1/8
Investments Commercial for sale
£70,000 Guide Price
Sold Long leasehold
1/7
Investments Commercial for sale
£105,000 Guide Price
Available Freehold
1/13
Investments Commercial for sale
£125,000 Guide Price
Available Freehold
1/19
Investments Commercial for sale
£125,000 Asking price
Sold Freehold
1/11
Investments Commercial for sale
£140,000 Guide Price