Chartered Surveyors and Business Property Specialists
Industrial Unit to let / Leasehold

£22,150 Per Annum Excl

Connect with Agent Download Brochure PDF
Let
1/14
Fullscreen

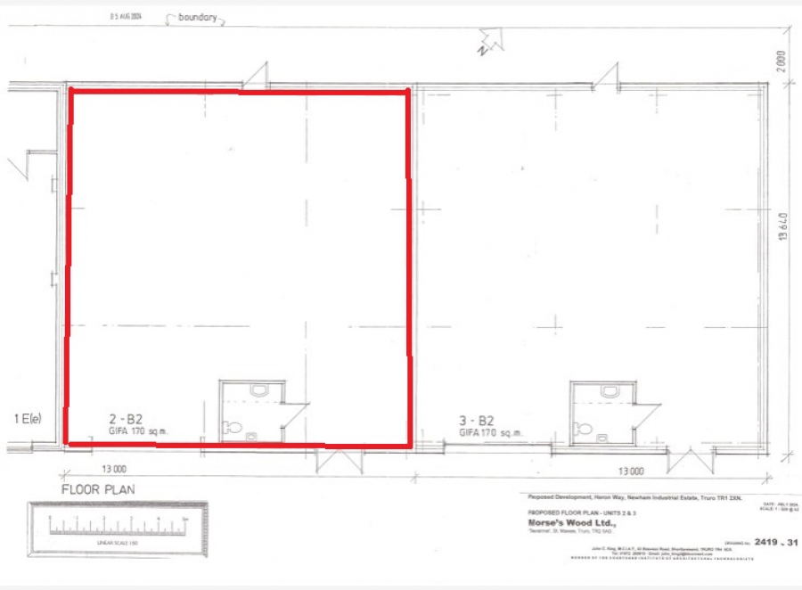
Unit 2, Heron Business Park, Heron Way, Truro, Cornwall

Connect with Agent Download Brochure PDF

Overview

  • BRAND NEW INDUSTRIAL DEVELOPMENT.
  • 1,847 SQ FT (172 SQ M)
  • UNDER CONSTRUCTION – NEARING COMPLETION
  • ESTABLISHED TRADING ESTATE LOCATION
  • NEW LEASE AVAILABLE
  • ENERGY PERFORMANCE CERTIFICATE – NOT REQUIRED

A brand new industrial unit of steel portal framed construction with a glazed personnel door and entrance and a 4m wide electric roller shutter door. The building has an inner eaves height of 3.5m and a maximum internal height of 5.07m.

Nearby occupiers include Wolseley, Brooklands Garage, The Bathroom Showroom, St John Ambulance, Primrose Herd, Jewson, Truro Technology Centre etc.

The premises are offered by way of a new 6 year lease with annual RPI uplift in rental.

The premises are located 1 mile from Truro City Centre in an elevated position above the Truro River. There is a host of businesses within the Newham area as is highlighted by the Newham Business Improvement District. https://www.newhamtruro.co.uk/

Interested in this Property?
Connect with our Expert

Mike Nightingale Partner View Profile

Call: 01872 247008
Email: msn@miller-commercial.co.uk

Other Industrial Unit Properties you might be interested in

Let Leasehold
1/2
Sold Freehold
1/8
Let Leasehold
1/13
Let Leasehold
1/5
Industrial Unit to let
£5,750 Per Annum Excl
Available Leasehold
1/12
Industrial Unit to let
£6,000 Per Annum Excl
Available Leasehold
1/16
Let Leasehold
1/14
Let Leasehold
1/10
Let Leasehold
1/16
Industrial Unit to let
£7,500 Per Annum Excl