Chartered Surveyors and Business Property Specialists
Industrial Unit to let / Leasehold

£19,500 Per Annum Excl

Connect with Agent Download Brochure PDF
Let
1/10
Fullscreen

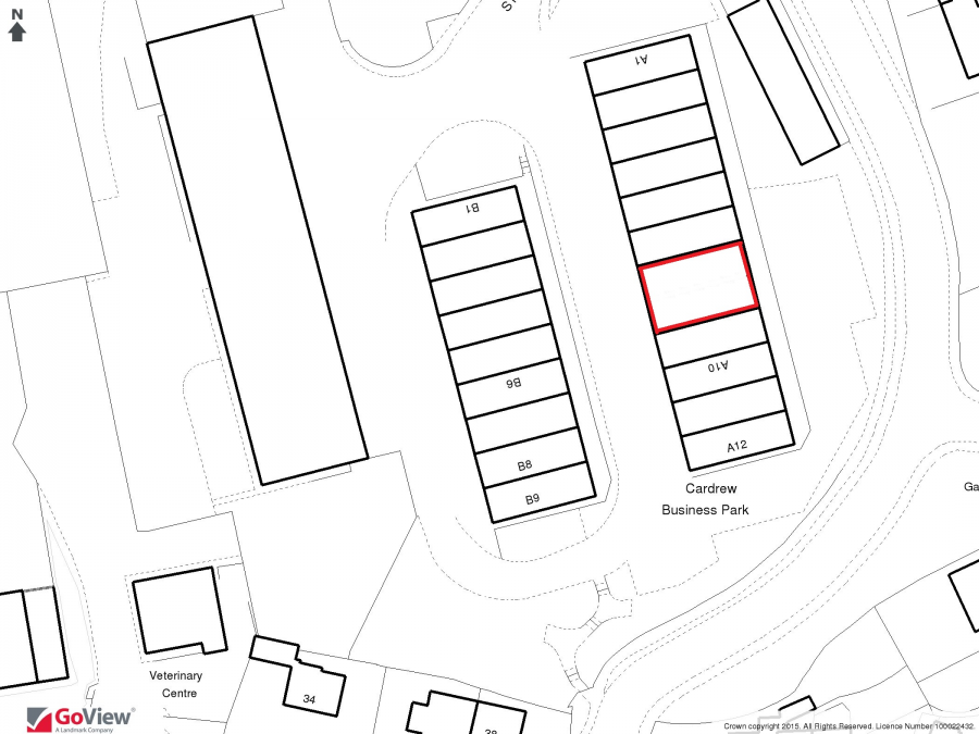
Unit A7/A8 Cardrew Business Park, Stanley Way, Redruth, Cornwall

Connect with Agent Download Brochure PDF

Overview

  • PURPOSE BUILT INDUSTRIAL UNIT
  • ESTABLISHED TRADING ESTATE LOCATION
  • CONVENIENT FOR A30
  • 2,284 SQ FT (212 SQ M)
  • AVAILABLE JANUARY 2023
  • ENERGY PERFORMANCE ASSET RATING – D(86)

A purpose built industrial unit of steel portal framed construction with profile steel sheet cladding. The premises are very light
including glazing in the front elevation together with light panels within the roof cladding. They are currently presented as open
space however an office and w.c can be installed to a tenant’s requirements.

The premises are well located on Cardrew Business Park which adjoins Stanley Way the principal access route through Cardrew Industrial Estate. They are situated approximately 1 mile from the A30 Trunk road and are located within a good mix of businesses including:- Camel Glass and Joinery, Mobile Windscreens, Boosters Ltd, Roberts Flooring and EDT Services.

Interested in this Property?
Connect with our Expert

Thomas Hewitt Consultant View Profile

Call: 01872 247025
Email: th@miller-commercial.co.uk

Other Industrial Unit Properties you might be interested in

Sold Freehold
1/8
Let Leasehold
1/13
Let Leasehold
1/5
Industrial Unit to let
£5,750 Per Annum Excl
Under offer Leasehold
1/12
Industrial Unit to let
£6,000 Per Annum Excl
Available Leasehold
1/16
Let Leasehold
1/14
Let Leasehold
1/10
Let Leasehold
1/16
Industrial Unit to let
£7,500 Per Annum Excl
Let Leasehold
1/11