Chartered Surveyors and Business Property Specialists
Industrial Unit to let / Leasehold

£10,000

Connect with Agent Download Brochure PDF
Sold
1/13
Fullscreen

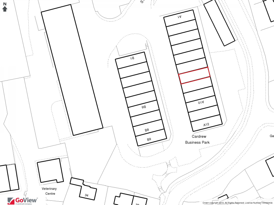
Unit A7, Cardrew Business Park, Redruth, Cornwall

Connect with Agent Download Brochure PDF

Overview

  • INDUSTRIAL PREMISES
  • 1,142 SQ FT (106 SQ M)
  • WITHIN EASY REACH OF THE A30
  • POPULAR TRADING LOCATION
  • LEASE ASSIGNMENT AVAILABLE
  • EPC RATING D (86)

A purpose built industrial unit of steel portal framed construction with profile steel sheet cladding. The premises are very light including glazing in the front elevation together with light panels within the roof cladding. A reception area, internal office and W.C. is present.

The premises are well located on Cardrew Business Park which adjoins Stanley Way the principal access route through Cardrew Industrial Estate. They are situated approximately 1 mile from the A30 Trunk road and are located within a good mix of businesses including:- Camel Glass and Joinery, Mobile Windscreens, Boosters Ltd, and The Smart Repair Co.

Interested in this Property?
Connect with our Expert

Thomas Hewitt Consultant View Profile

Call: 01872 247025
Email: th@miller-commercial.co.uk

Other Industrial Unit Properties you might be interested in

Available Leasehold
1/7
Industrial Unit to let
POA
Let Leasehold
1/2
Sold Freehold
1/8
Let Leasehold
1/13
Let Leasehold
1/5
Industrial Unit to let
£5,750 Per Annum Excl
Available Leasehold
1/16
Let Leasehold
1/14
Let Leasehold
1/10
Let Leasehold
1/16
Industrial Unit to let
£7,500 Per Annum Excl